DJS_Heating's profile picture. Plumbers in Bolton. Gas Safe Registered Engineers, We Cover Bolton & The North West, New Boilers, Boiler Repairs, Gas Safety Checks, 01204 830042

DJS Plumbing&heating

@DJS_Heating

Plumbers in Bolton. Gas Safe Registered Engineers, We Cover Bolton & The North West, New Boilers, Boiler Repairs, Gas Safety Checks, 01204 830042

Gas Safety Week starts today! Check out these top tips to keep you and your family gas safe #GSW17 thndr.me/Wybh0N

DJS_Heating's tweet image. Gas Safety Week starts today! Check out these top tips to keep you and your family gas safe #GSW17 thndr.me/Wybh0N

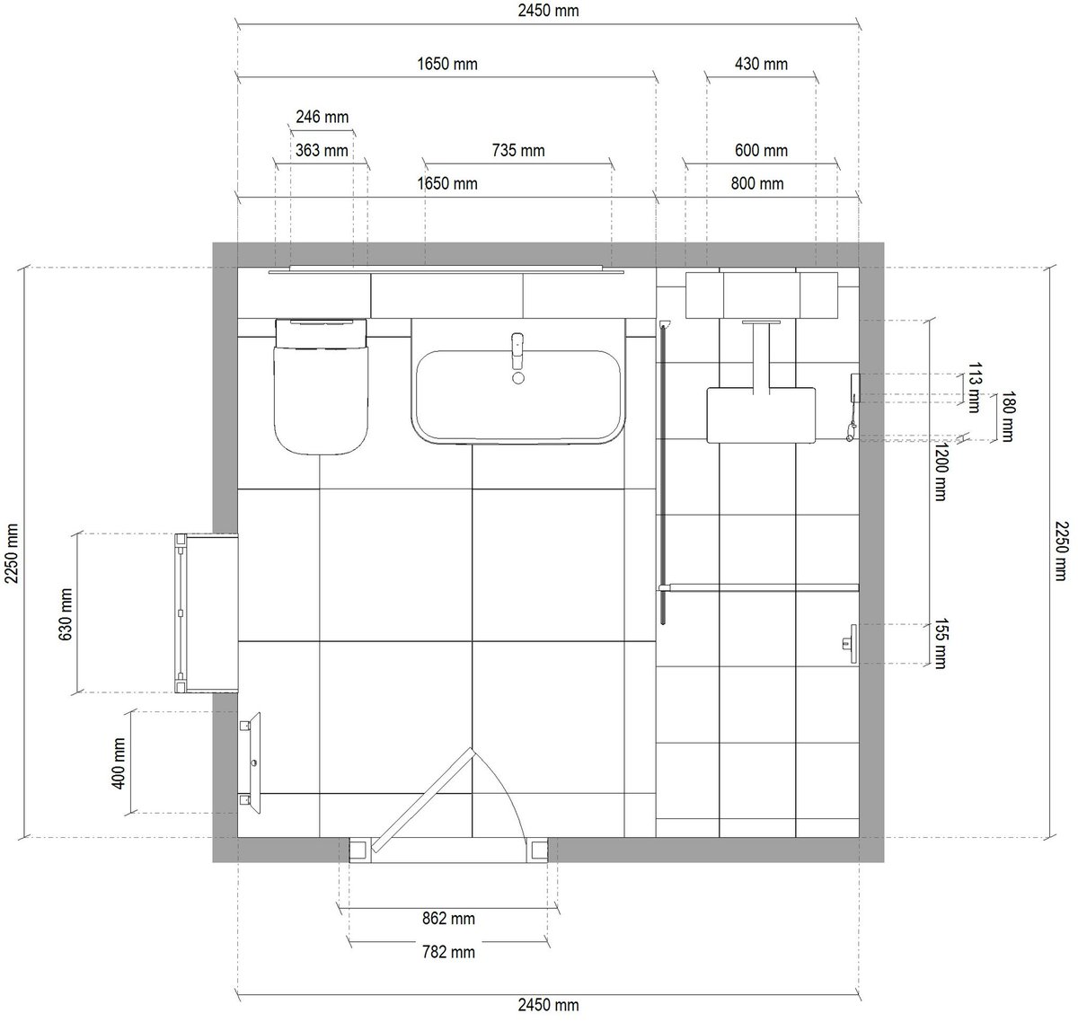
Our team is in Heaton #Bolton starting two bathroom installations. Artist impressions below djsplumbingandheatingltd.co.uk/plumbing/bathr…

DJS_Heating's tweet image. Our team is in Heaton #Bolton starting two bathroom installations. Artist impressions below djsplumbingandheatingltd.co.uk/plumbing/bathr…
DJS_Heating's tweet image. Our team is in Heaton #Bolton starting two bathroom installations. Artist impressions below djsplumbingandheatingltd.co.uk/plumbing/bathr…
DJS_Heating's tweet image. Our team is in Heaton #Bolton starting two bathroom installations. Artist impressions below djsplumbingandheatingltd.co.uk/plumbing/bathr…
DJS_Heating's tweet image. Our team is in Heaton #Bolton starting two bathroom installations. Artist impressions below djsplumbingandheatingltd.co.uk/plumbing/bathr…

The team are in sunny #Salford today installing a replacement #boiler #Baxi. 7 year warranty.

DJS_Heating's tweet image. The team are in sunny #Salford today installing a replacement #boiler #Baxi. 7 year warranty.

#Boiler replacements #Bolton its a great time to have a energy efficient boiler installed. New ERP gas boilers starting from £895


Check out our new plumbing and heating website ! djsplumbingandheatingltd.co.uk


DJS Plumbing&heating reposted

Looking for a good PLUMBER in Bolton? Online quotes available theboltondirectory.co.uk/plumbers-bolto… #plumbers #bolton #boilers

theboltondirect's tweet image. Looking for a good PLUMBER in Bolton? Online quotes available
theboltondirectory.co.uk/plumbers-bolto…

#plumbers #bolton #boilers

DJS Plumbing&heating reposted

Bathrooms fitted in the Bolton area. Get a quote today theboltondirectory.co.uk/plumbers-bolto… #bathrooms #bolton #fitted #showers

theboltondirect's tweet image. Bathrooms fitted in the Bolton area. Get a quote today
theboltondirectory.co.uk/plumbers-bolto…

#bathrooms #bolton #fitted #showers

DJS Plumbing&heating reposted

Who's advertising in The Bolton Directory? DJS Plumbing and Heating Ltd theboltondirectory.co.uk/djs-plumbing.p… #plumbers #bolton

theboltondirect's tweet image. Who's advertising in The Bolton Directory?
DJS Plumbing and Heating Ltd
theboltondirectory.co.uk/djs-plumbing.p…

#plumbers #bolton

Plumbing & Heating Services Central heating repairs Central heating installations Boiler replacements Boiler breakdowns & Servicing...


Loading...

Something went wrong.


Something went wrong.