mayaroglu's profile picture.

Mert Ayaroğlu

@mayaroglu

Mert Ayaroğlu reposted

BJK arsasının rezerv yapı alanı ilan edilmesi çokça konuşuldu ama gözden “ırak” olunca gündemden de ırak kalan başka bir örnekten bahsedelim: Fenerbahçe Spor Kulübünün Ataşehir’de Kayışdağı Mahallesinde yer alan 26 bin 538 metrekare büyüklüğündeki kolej ve spor tesisi alanı, 16…

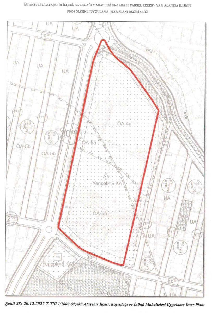
ceyhan_cilgin's tweet image. BJK arsasının rezerv yapı alanı ilan edilmesi çokça konuşuldu ama gözden “ırak” olunca gündemden de ırak kalan başka bir örnekten bahsedelim: 

Fenerbahçe Spor Kulübünün Ataşehir’de Kayışdağı Mahallesinde yer alan 26 bin 538 metrekare büyüklüğündeki kolej ve spor tesisi alanı, 16…
ceyhan_cilgin's tweet image. BJK arsasının rezerv yapı alanı ilan edilmesi çokça konuşuldu ama gözden “ırak” olunca gündemden de ırak kalan başka bir örnekten bahsedelim: 

Fenerbahçe Spor Kulübünün Ataşehir’de Kayışdağı Mahallesinde yer alan 26 bin 538 metrekare büyüklüğündeki kolej ve spor tesisi alanı, 16…
ceyhan_cilgin's tweet image. BJK arsasının rezerv yapı alanı ilan edilmesi çokça konuşuldu ama gözden “ırak” olunca gündemden de ırak kalan başka bir örnekten bahsedelim: 

Fenerbahçe Spor Kulübünün Ataşehir’de Kayışdağı Mahallesinde yer alan 26 bin 538 metrekare büyüklüğündeki kolej ve spor tesisi alanı, 16…

Kanun yapıcılar “rezerv yapı alanlarını, riskli alanlarda ya da riskli yapılarda yaşayanlara rezerv konut üretmek için kullanacağız” diyorlardı. Rezerv konut üretimi gündemde değil ama rezerv yapı alanı kavramı inşaat sermayesinin ve ona bel bağlayanların her türlü ihtiyacı için…



Mert Ayaroğlu reposted

“Kıymetli milletimiz… Burada bir davanın duruşması yapılmıyor. Burada devlet ile vatandaş arasındaki güven bağı yargılanıyor. Bugün bu kürsüde bir insanın hayatı değil, bir ülkenin hukuk devleti olma iddiası sınanıyor.” Ekrem İmamoğlu Diploma Davası - Silivri / 15 Ocak 2026


Mert Ayaroğlu reposted

Bugün 196. kez Vera ile birlikte Tayfun’u cam ardından 1 saat görmek için Silivri’deydik. Tayfun’un alnındaki kabuk tutmuş yarık yaralarına, kemikleri çatlamış eline dokunamadık bile…  Tüm kamuoyu ile paylaşmak isterim; Adli Tıp Kurumu yetkisi gereği kişilerin adil yargılanıp…


Mert Ayaroğlu reposted

Kanun yapıcılar “rezerv yapı alanlarını, riskli alanlarda ya da riskli yapılarda yaşayanlara rezerv konut üretmek için kullanacağız” diyorlardı. Rezerv konut üretimi gündemde değil ama rezerv yapı alanı kavramı inşaat sermayesinin ve ona bel bağlayanların her türlü ihtiyacı için…

Dikilitaş’ta rezidans ihalesi: Kamu ihalesi zengini 18 şirket sıraya girdi 📌Beşiktaş Dikilitaş tesislerinin yerine yapılması planlanan 10 katlı rezidans ihalesi için 18 firma başvuruda bulundu. Emlak Konut’un paylaştığı videoyla projenin görüntüsü de netleşti. 📍 Siyasilerin…

kisadalgamedya's tweet image. Dikilitaş’ta rezidans ihalesi: Kamu ihalesi zengini 18 şirket sıraya girdi

📌Beşiktaş Dikilitaş tesislerinin yerine yapılması planlanan 10 katlı rezidans ihalesi için 18 firma başvuruda bulundu. Emlak Konut’un paylaştığı videoyla projenin görüntüsü de netleşti.

📍 Siyasilerin…


Mert Ayaroğlu reposted

Murat Çalık: Yaklaşık iki saatlik bir tıbbi işlem için neredeyse bir gün boyunca aç, susuz ve yoğun stres altında kaldım. Murat Çalık 308 gündür tutuklu, unutma! Gündemden düşmesine izin verme!

Sol_Yumrukk's tweet image. Murat Çalık: Yaklaşık iki saatlik bir tıbbi işlem için neredeyse bir gün boyunca aç, susuz ve yoğun stres altında kaldım.

Murat Çalık 308 gündür tutuklu, unutma!

Gündemden düşmesine izin verme!

Mert Ayaroğlu reposted

Basına ve Kamuoyuna; Kadıköy Rıhtım’da Bilimsel Gerçekler Hukuk Marifetiyle Yok Sayılmıştır! İstanbul ili, Kadıköy ilçesi, Rıhtım Mevkiinde bulunan kıyı dolgu alanı üzerinde yapılması planlanan cami, yer altı otoparkı ve müştemilat projesine dair İstanbul 3. İdare Mahkemesi…

mimarist_org's tweet image. Basına ve Kamuoyuna;
Kadıköy Rıhtım’da Bilimsel Gerçekler Hukuk Marifetiyle Yok Sayılmıştır!

İstanbul ili, Kadıköy ilçesi, Rıhtım Mevkiinde bulunan kıyı dolgu alanı üzerinde yapılması planlanan cami, yer altı otoparkı ve müştemilat projesine dair İstanbul 3. İdare Mahkemesi…

Mert Ayaroğlu reposted

Savcı, Ekrem İmamoğlu’nun diplomasının “sahte” olduğuna dair iddiasını diplomayı veren İstanbul Üniversitesi’ne bile inandıramadı! İstanbul Üniversitesi’nin kendi avukatı mahkemede açıkça söylüyor: “Davacının doğrudan yaptığı bir eylemi belirtmiyoruz.” Yani ortada “fail” yok,…


Mert Ayaroğlu reposted

Katliamın üzerinden bir yıl geçti. Sorumluların hiçbiri istifa etmedi. Turizm Bakanı istifa etmek yerine Yunanistan’a tatile gitti. 34’ü çocuk 78 kişiyi yaktılar.

timursoykan's tweet image. Katliamın üzerinden bir yıl geçti. Sorumluların hiçbiri istifa etmedi. Turizm Bakanı istifa etmek yerine Yunanistan’a tatile gitti. 34’ü çocuk 78 kişiyi yaktılar.

Mert Ayaroğlu reposted

Görmeyen gözler, duymayan kulaklar için artık her gün yazacağım. KANSER HASTASI Beylikdüzü Belediye Başkanı Mehmet Murat Çalık CEZAEVİNDE YAŞAYAMAZ❗️ KANSER HASTASI Beylikdüzü Belediye Başkanı Mehmet Murat Çalık CEZAEVİNDE TEDAVİ OLAMAZ❗️ KANSER HASTASI Beylikdüzü Belediye…


Mert Ayaroğlu reposted

Diploma iptali davasının duruşması sırasında mahkeme heyetine tüm süreci anlattım. Sizlerin de dinlemesini ve bilmesini isterim.


Mert Ayaroğlu reposted

Mehmet Murat Çalık Serbest Bırakılsın! Tayfun Kahraman Serbest Bırakılsın! Mehmet Murat Çalık Serbest Bırakılsın! Tayfun Kahraman Serbest Bırakılsın! Mehmet Murat Çalık Serbest Bırakılsın! Tayfun Kahraman Serbest Bırakılsın! Mehmet Murat Çalık Serbest Bırakılsın!


Mert Ayaroğlu reposted

Tayfun Kahraman ve Murat Çalık yaşam mücadelesi veriyor. Tayfun Kahraman, MS hastası. Hastalığı ilerlemiş olmasına rağmen, hakkında Anayasa Mahkemesi’nin yeniden yargılama kararı varken tedavisi gün içinde yapılıp tekrar cezaevine gönderiliyor. Murat Çalık ise kanserle mücadele…


Mert Ayaroğlu reposted

Çalık Başkan’ı güven duyduğu hekimden koparıp belirsizliğe sürükleyenler Türk Ceza Kanunu Madde 94'e göre bu muamelenin "İşkence ve Eziyet" kapsamına girdiğini ve en önemlisi işkence suçunda ZAMANAŞIMI OLMADIĞINI akıllarından çıkarmasın.

Beylikdüzü Belediye Başkanımız Murat Çalık’ın durumu sadece bir tedavi hakkı ihlali değil, sistematik bir hak ihlali ve intikam halini aldı. Kendi takibini ve ameliyatını yapan hekimler dururken, "Sipariş rapor" düzenleyeceği şüphesi uyandıran heyetlere zorla sevk etmek,…

muratemirchp's tweet image. Beylikdüzü Belediye Başkanımız Murat Çalık’ın durumu sadece bir tedavi hakkı ihlali değil, sistematik bir hak ihlali ve intikam halini aldı. Kendi takibini ve ameliyatını yapan hekimler dururken, "Sipariş rapor" düzenleyeceği şüphesi uyandıran heyetlere zorla sevk etmek,…


Mert Ayaroğlu reposted

Bilal'e anlatır gibi anlatalım, Ekrem İmamoğlu Bilal'i de, Fidan'ı da, Albayrak'ı da, Erdoğan'ı da yeneceği için topla, tüfekle, tankla, süngüyle saldırı altında. Ve bunu herkes biliyor. Hükmen malupsunuz, gerçekten malup olacaksınız.

This post is unavailable.

Tayfun Kahraman’a işkence yapmayın! Murat Çalık’a işkence yapmayın! Suçluları dışarı salarken masum insanları içerde tutmayın!

Dün, gün içerisinde Tayfun’un apar topar hastaneye kaldırıldığını öğrendim. Bugün kendisiyle telefonda 10 dakika görüşme şansım oldu ve yaşananları öğrendim. MS hastası olan eşim Tayfun Kahraman, dün gündüz sayımına çıkarken dengesini sağlayamayıp, ayağını yere basamadığı için…



Mert Ayaroğlu reposted

4. kez doğrunun ve cesaretin peşinde beni yalnız bırakmadınız. Başta il başkanım çelik iradeli Özgür Çelik’e, partimizin yöneticileri ve milletvekillerine, CHP'nin yürekli gençlerine minnettarım. Yılmayan, boyun eğmeye denge demeyen, mücadeleyi dayanışmayla büyütüp moral olan…


Mert Ayaroğlu reposted

Mehmet Murat Çalık için adalet arıyoruz! #MehmetMuratÇalıkSerbestBırakılsın

CalikGonullusu's tweet image. Mehmet Murat Çalık için adalet arıyoruz!

#MehmetMuratÇalıkSerbestBırakılsın

Mert Ayaroğlu reposted

Köylülerin evini başına göçürecekler. Şu yapılan "topraklarınızdan defolun gidin" demektir ve güç gösterisidir. Güçlüler çünkü her şey patronların lehine işliyor. Toprağını koruyan köylüye ve emeğine sahip çıkan işçiye hemen aksiyon alanlar patronlar olunca bekliyor.…

‼️AKBELEN’DEN İHBARIMIZDIR‼️ Bu köyde bir insanın canına, bir hayvanın yaşamına, Evimize, damımıza, ahırımıza zarar gelirse sorumlusu YK Enerji Şirketi sahipleri Limak ve İçtaş Holding’dir. Şikayetlerimize rağmen durdurmayan @tcmuglavaliligi sorumludur. @tcbestepe DURDURUN!



Mert Ayaroğlu reposted

Ben Özgür Çelik. Bu karanlık hikayede zorbalar kimi susturmaya çalışıyorlarsa onun yanındayım. Murat Ongun’un savunma hakkını koruyalım, takip edelim.

Ben Murat Ongun. İsmim yazılınca hesabım engellendiği için bu ismi seçtim. Zaten bize yaşatılanlar karanlık bir hikâye değil mi? Kaba güce karşı bir kez daha kolektif desteğinizi bekliyorum. Lütfen takip ediniz.



Mert Ayaroğlu reposted

Enflasyon yüzde 56,14 #ÇünküAKP

berkaygezginn's tweet image. Enflasyon yüzde 56,14
#ÇünküAKP

Loading...

Something went wrong.


Something went wrong.