#aduconversion search results

Part 2 of our latest project. Key St. - #KitchenRemodel and an #ADUConversion


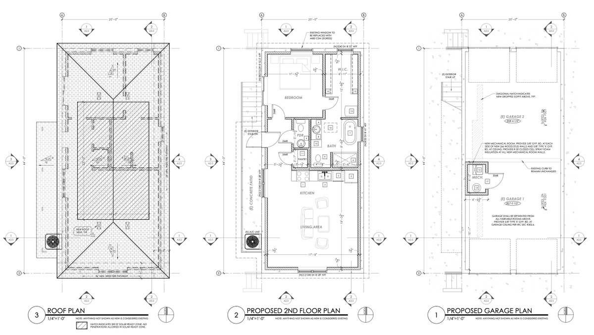
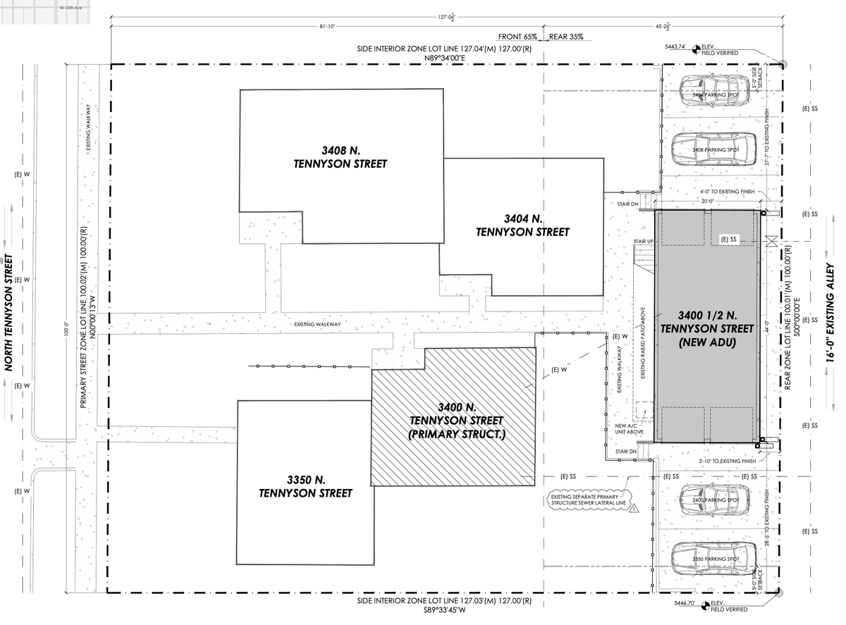
Tennyson St, 34th Ave, #Denver 80212 #ADUconversion from garage w/ 2nd story clubhouse in one of Denver's prime urban neighborhoods. A cottage court, which meant naming one of the four existing attached units as the "primary" structure to which the new ADU would be "accessory."

BuildUpDenver's tweet image. Tennyson St, 34th Ave, #Denver 80212
#ADUconversion from garage w/ 2nd story clubhouse in one of Denver's prime urban neighborhoods. 
A cottage court, which meant naming one of the four existing attached units as the "primary" structure to which the new ADU would be "accessory."
BuildUpDenver's tweet image. Tennyson St, 34th Ave, #Denver 80212
#ADUconversion from garage w/ 2nd story clubhouse in one of Denver's prime urban neighborhoods. 
A cottage court, which meant naming one of the four existing attached units as the "primary" structure to which the new ADU would be "accessory."
BuildUpDenver's tweet image. Tennyson St, 34th Ave, #Denver 80212
#ADUconversion from garage w/ 2nd story clubhouse in one of Denver's prime urban neighborhoods. 
A cottage court, which meant naming one of the four existing attached units as the "primary" structure to which the new ADU would be "accessory."
BuildUpDenver's tweet image. Tennyson St, 34th Ave, #Denver 80212
#ADUconversion from garage w/ 2nd story clubhouse in one of Denver's prime urban neighborhoods. 
A cottage court, which meant naming one of the four existing attached units as the "primary" structure to which the new ADU would be "accessory."

It’s SB9 time in LA! 🏠 Transforming this SFR into a triplex w/ SB9 & ADU—earning $13K/month gross income. City may allow 2 more units! Ready to explore ADU & SB9 opportunities? DM us! 🚀 #SB9 #ADUConversion #RealEstateInvesting #RentalIncome


From single-family to triplex—and maybe a 5-plex! 🏘️ We’re converting this property w/ SB9 & ADU additions, aiming for $13K/month income. Want to explore ADU conversions? Let’s make it happen! 🚀 #ADUConversion #RealEstateInvesting #PassiveIncome #RentalIncome


Concrete day! 🏗️ Turning this SFR into 4 units (SB9 & ADU)—and city allows 2 more units! Estimated $13K/month gross rent. Want to maximize your rental potential? Let’s talk strategy! 🚀 #SB9 #ADUConversion #RealEstateInvesting #RentalIncome


If you had this amazing ADU, would you keep it for yourself or turn it into an income-generating asset? What do you think? #MinimalistDesign #ADUConversion #ModernLiving #ArchitectureGoals

YifuDesign's tweet image. If you had this amazing ADU, would you keep it for yourself or turn it into an income-generating asset? 

What do you think?

#MinimalistDesign #ADUConversion #ModernLiving #ArchitectureGoals

There was a time we could't see the light at the end of the tunnel . . . Grateful to the @carlsbadcagov for working closely and diligently with us every step of the way 🙌 #adu #aduconversion

AwryReno's tweet image. There was a time we could't see the light at the end of the tunnel . . . Grateful to the @carlsbadcagov for working closely and diligently with us every step of the way 🙌 #adu #aduconversion

Looking to create an amazing ADU? Look no further! Lux Construction Group, located in Los Angeles, can help you convert your garage into a stunning Accessory Dwelling Unit (ADU) that adds value to your property. #ADUconversion #LuxConstructionGroup #LosAngeles #GetStarted

LuxDevelopersLA's tweet image. Looking to create an amazing ADU? Look no further! Lux Construction Group, located in Los Angeles, can help you convert your garage into a stunning Accessory Dwelling Unit (ADU) that adds value to your property.  #ADUconversion #LuxConstructionGroup #LosAngeles #GetStarted

Would you live in your garage? You might after we transform it into a beautiful, livable ADU! Extra income, space for family, we help homeowners reimagine their garages. Louisville area. Let’s talk about your vision. #ADUConversion #GarageToHome #LouisvilleHomes #HomeImprovement

samellislive's tweet image. Would you live in your garage?
You might after we transform it into a beautiful, livable ADU!
Extra income, space for family, we help homeowners reimagine their garages.
Louisville area.
Let’s talk about your vision.
#ADUConversion #GarageToHome #LouisvilleHomes #HomeImprovement

Maximize your living space with a garage conversion to an ADU. castleremodelingca.wordpress.com/2023/09/28/max… Castle Remodeling 5280 Kanan Rd, Agoura Hills, CA 91301, United States 818–453–6587 #ADUConversion #ADUProject #ADUConstruction


Discover the Perfect Solution for Your Extra Space Needs at Castle Remodeling Inc! castleremodelingca.wordpress.com/2023/11/03/dis… Castle Remodeling 5280 Kanan Rd, Agoura Hills, CA 91301, United States 818–453–6587 #GarageConversion #ADUConversion #GarageConversionContractor #RoomAddition


𝐓𝐫𝐚𝐧𝐬𝐟𝐨𝐫𝐦 𝐘𝐨𝐮𝐫 𝐆𝐚𝐫𝐚𝐠𝐞 𝐢𝐧𝐭𝐨 𝐚 𝐃𝐫𝐞𝐚𝐦 𝐒𝐩𝐚𝐜𝐞! 🔗Click the link to read more: adualliance.com/garage-to-adu-… and start your journey towards an incredible home transformation today! #ADUConversion #HomeDesign #OrangeCountyHomes


If you're building an ADU within a home or existing building, the ADU can max out at the maximum height of the existing structure. Learn More: lnkd.in/dhR2TUyY #adu #aduconstruction #aduconversion #adubuilding #construction #contractor #losangeles #california


Elevate your space with our 2-Car Garage ADU Conversion guide! Expert tips for smart living & property value boost. Start transforming today! 🔨📈 👉 Dive in: ftrrenovation.com/blog #ADUConversion #HomeReno #SpaceMax #UpgradeYourHome #SmartLiving

FTRRenovation's tweet image. Elevate your space with our 2-Car Garage ADU Conversion guide! Expert tips for smart living & property value boost. Start transforming today! 🔨📈

👉 Dive in: ftrrenovation.com/blog

#ADUConversion #HomeReno #SpaceMax #UpgradeYourHome #SmartLiving

Transform your room or garage into the creative space of your dreams, and add value to your property 👩‍🏫 Call us: (888) 510-1055 🌐 Visit: novakremodeling.com #aduconversion #novakremodeling #garageconversion

NovakRemodeling's tweet image. Transform your room or garage into the creative space of your dreams, and add value to your property 👩‍🏫
Call us: (888) 510-1055
🌐 Visit: novakremodeling.com
#aduconversion #novakremodeling #garageconversion

Tennyson St, 34th Ave, #Denver 80212 #ADUconversion from garage w/ 2nd story clubhouse in one of Denver's prime urban neighborhoods. A cottage court, which meant naming one of the four existing attached units as the "primary" structure to which the new ADU would be "accessory."

BuildUpDenver's tweet image. Tennyson St, 34th Ave, #Denver 80212
#ADUconversion from garage w/ 2nd story clubhouse in one of Denver's prime urban neighborhoods. 
A cottage court, which meant naming one of the four existing attached units as the "primary" structure to which the new ADU would be "accessory."
BuildUpDenver's tweet image. Tennyson St, 34th Ave, #Denver 80212
#ADUconversion from garage w/ 2nd story clubhouse in one of Denver's prime urban neighborhoods. 
A cottage court, which meant naming one of the four existing attached units as the "primary" structure to which the new ADU would be "accessory."
BuildUpDenver's tweet image. Tennyson St, 34th Ave, #Denver 80212
#ADUconversion from garage w/ 2nd story clubhouse in one of Denver's prime urban neighborhoods. 
A cottage court, which meant naming one of the four existing attached units as the "primary" structure to which the new ADU would be "accessory."
BuildUpDenver's tweet image. Tennyson St, 34th Ave, #Denver 80212
#ADUconversion from garage w/ 2nd story clubhouse in one of Denver's prime urban neighborhoods. 
A cottage court, which meant naming one of the four existing attached units as the "primary" structure to which the new ADU would be "accessory."

Would you live in your garage? You might after we transform it into a beautiful, livable ADU! Extra income, space for family, we help homeowners reimagine their garages. Louisville area. Let’s talk about your vision. #ADUConversion #GarageToHome #LouisvilleHomes #HomeImprovement

samellislive's tweet image. Would you live in your garage?
You might after we transform it into a beautiful, livable ADU!
Extra income, space for family, we help homeowners reimagine their garages.
Louisville area.
Let’s talk about your vision.
#ADUConversion #GarageToHome #LouisvilleHomes #HomeImprovement

Concrete day! 🏗️ Turning this SFR into 4 units (SB9 & ADU)—and city allows 2 more units! Estimated $13K/month gross rent. Want to maximize your rental potential? Let’s talk strategy! 🚀 #SB9 #ADUConversion #RealEstateInvesting #RentalIncome


It’s SB9 time in LA! 🏠 Transforming this SFR into a triplex w/ SB9 & ADU—earning $13K/month gross income. City may allow 2 more units! Ready to explore ADU & SB9 opportunities? DM us! 🚀 #SB9 #ADUConversion #RealEstateInvesting #RentalIncome


From single-family to triplex—and maybe a 5-plex! 🏘️ We’re converting this property w/ SB9 & ADU additions, aiming for $13K/month income. Want to explore ADU conversions? Let’s make it happen! 🚀 #ADUConversion #RealEstateInvesting #PassiveIncome #RentalIncome


If you had this amazing ADU, would you keep it for yourself or turn it into an income-generating asset? What do you think? #MinimalistDesign #ADUConversion #ModernLiving #ArchitectureGoals

YifuDesign's tweet image. If you had this amazing ADU, would you keep it for yourself or turn it into an income-generating asset? 

What do you think?

#MinimalistDesign #ADUConversion #ModernLiving #ArchitectureGoals

There was a time we could't see the light at the end of the tunnel . . . Grateful to the @carlsbadcagov for working closely and diligently with us every step of the way 🙌 #adu #aduconversion

AwryReno's tweet image. There was a time we could't see the light at the end of the tunnel . . . Grateful to the @carlsbadcagov for working closely and diligently with us every step of the way 🙌 #adu #aduconversion

Elevate your space with our 2-Car Garage ADU Conversion guide! Expert tips for smart living & property value boost. Start transforming today! 🔨📈 👉 Dive in: ftrrenovation.com/blog #ADUConversion #HomeReno #SpaceMax #UpgradeYourHome #SmartLiving

FTRRenovation's tweet image. Elevate your space with our 2-Car Garage ADU Conversion guide! Expert tips for smart living & property value boost. Start transforming today! 🔨📈

👉 Dive in: ftrrenovation.com/blog

#ADUConversion #HomeReno #SpaceMax #UpgradeYourHome #SmartLiving

𝐓𝐫𝐚𝐧𝐬𝐟𝐨𝐫𝐦 𝐘𝐨𝐮𝐫 𝐆𝐚𝐫𝐚𝐠𝐞 𝐢𝐧𝐭𝐨 𝐚 𝐃𝐫𝐞𝐚𝐦 𝐒𝐩𝐚𝐜𝐞! 🔗Click the link to read more: adualliance.com/garage-to-adu-… and start your journey towards an incredible home transformation today! #ADUConversion #HomeDesign #OrangeCountyHomes


Discover the Perfect Solution for Your Extra Space Needs at Castle Remodeling Inc! castleremodelingca.wordpress.com/2023/11/03/dis… Castle Remodeling 5280 Kanan Rd, Agoura Hills, CA 91301, United States 818–453–6587 #GarageConversion #ADUConversion #GarageConversionContractor #RoomAddition


Maximize your living space with a garage conversion to an ADU. castleremodelingca.wordpress.com/2023/09/28/max… Castle Remodeling 5280 Kanan Rd, Agoura Hills, CA 91301, United States 818–453–6587 #ADUConversion #ADUProject #ADUConstruction


Looking to create an amazing ADU? Look no further! Lux Construction Group, located in Los Angeles, can help you convert your garage into a stunning Accessory Dwelling Unit (ADU) that adds value to your property. #ADUconversion #LuxConstructionGroup #LosAngeles #GetStarted

LuxDevelopersLA's tweet image. Looking to create an amazing ADU? Look no further! Lux Construction Group, located in Los Angeles, can help you convert your garage into a stunning Accessory Dwelling Unit (ADU) that adds value to your property.  #ADUconversion #LuxConstructionGroup #LosAngeles #GetStarted

Transform your room or garage into the creative space of your dreams, and add value to your property 👩‍🏫 Call us: (888) 510-1055 🌐 Visit: novakremodeling.com #aduconversion #novakremodeling #garageconversion

NovakRemodeling's tweet image. Transform your room or garage into the creative space of your dreams, and add value to your property 👩‍🏫
Call us: (888) 510-1055
🌐 Visit: novakremodeling.com
#aduconversion #novakremodeling #garageconversion

No results for "#aduconversion"

Tennyson St, 34th Ave, #Denver 80212 #ADUconversion from garage w/ 2nd story clubhouse in one of Denver's prime urban neighborhoods. A cottage court, which meant naming one of the four existing attached units as the "primary" structure to which the new ADU would be "accessory."

BuildUpDenver's tweet image. Tennyson St, 34th Ave, #Denver 80212
#ADUconversion from garage w/ 2nd story clubhouse in one of Denver's prime urban neighborhoods. 
A cottage court, which meant naming one of the four existing attached units as the "primary" structure to which the new ADU would be "accessory."
BuildUpDenver's tweet image. Tennyson St, 34th Ave, #Denver 80212
#ADUconversion from garage w/ 2nd story clubhouse in one of Denver's prime urban neighborhoods. 
A cottage court, which meant naming one of the four existing attached units as the "primary" structure to which the new ADU would be "accessory."
BuildUpDenver's tweet image. Tennyson St, 34th Ave, #Denver 80212
#ADUconversion from garage w/ 2nd story clubhouse in one of Denver's prime urban neighborhoods. 
A cottage court, which meant naming one of the four existing attached units as the "primary" structure to which the new ADU would be "accessory."
BuildUpDenver's tweet image. Tennyson St, 34th Ave, #Denver 80212
#ADUconversion from garage w/ 2nd story clubhouse in one of Denver's prime urban neighborhoods. 
A cottage court, which meant naming one of the four existing attached units as the "primary" structure to which the new ADU would be "accessory."

Would you live in your garage? You might after we transform it into a beautiful, livable ADU! Extra income, space for family, we help homeowners reimagine their garages. Louisville area. Let’s talk about your vision. #ADUConversion #GarageToHome #LouisvilleHomes #HomeImprovement

samellislive's tweet image. Would you live in your garage?
You might after we transform it into a beautiful, livable ADU!
Extra income, space for family, we help homeowners reimagine their garages.
Louisville area.
Let’s talk about your vision.
#ADUConversion #GarageToHome #LouisvilleHomes #HomeImprovement

There was a time we could't see the light at the end of the tunnel . . . Grateful to the @carlsbadcagov for working closely and diligently with us every step of the way 🙌 #adu #aduconversion

AwryReno's tweet image. There was a time we could't see the light at the end of the tunnel . . . Grateful to the @carlsbadcagov for working closely and diligently with us every step of the way 🙌 #adu #aduconversion

Looking to create an amazing ADU? Look no further! Lux Construction Group, located in Los Angeles, can help you convert your garage into a stunning Accessory Dwelling Unit (ADU) that adds value to your property. #ADUconversion #LuxConstructionGroup #LosAngeles #GetStarted

LuxDevelopersLA's tweet image. Looking to create an amazing ADU? Look no further! Lux Construction Group, located in Los Angeles, can help you convert your garage into a stunning Accessory Dwelling Unit (ADU) that adds value to your property.  #ADUconversion #LuxConstructionGroup #LosAngeles #GetStarted

If you had this amazing ADU, would you keep it for yourself or turn it into an income-generating asset? What do you think? #MinimalistDesign #ADUConversion #ModernLiving #ArchitectureGoals

YifuDesign's tweet image. If you had this amazing ADU, would you keep it for yourself or turn it into an income-generating asset? 

What do you think?

#MinimalistDesign #ADUConversion #ModernLiving #ArchitectureGoals

Transform your room or garage into the creative space of your dreams, and add value to your property 👩‍🏫 Call us: (888) 510-1055 🌐 Visit: novakremodeling.com #aduconversion #novakremodeling #garageconversion

NovakRemodeling's tweet image. Transform your room or garage into the creative space of your dreams, and add value to your property 👩‍🏫
Call us: (888) 510-1055
🌐 Visit: novakremodeling.com
#aduconversion #novakremodeling #garageconversion

Elevate your space with our 2-Car Garage ADU Conversion guide! Expert tips for smart living & property value boost. Start transforming today! 🔨📈 👉 Dive in: ftrrenovation.com/blog #ADUConversion #HomeReno #SpaceMax #UpgradeYourHome #SmartLiving

FTRRenovation's tweet image. Elevate your space with our 2-Car Garage ADU Conversion guide! Expert tips for smart living & property value boost. Start transforming today! 🔨📈

👉 Dive in: ftrrenovation.com/blog

#ADUConversion #HomeReno #SpaceMax #UpgradeYourHome #SmartLiving

Loading...

Something went wrong.


Something went wrong.


United States Trends