#projectvisualisation 검색 결과
Bringing your project to life before construction starts saves time, cost, and confusion. Our 3D modelling services help stakeholders visualise plant layouts, equipment placements, and access routes in real-world dimensions. #3DModelling #ProjectVisualisation #ProjexSolutions

Come visite us in the #startup area @BeyondTunnel Discover our C-SITE #projectvisualisation platform #contech #yoursiteinsight #conference2018 #infrastructure @josefienv @EmilieDauwe

Proud to be part of this project!! #csite #projectvisualisation
‘Onze programmatorische aanpak loont: na vijftien voorstudies ken je de do’s-and-don’ts wel’ tijd.be/partner/id/101…
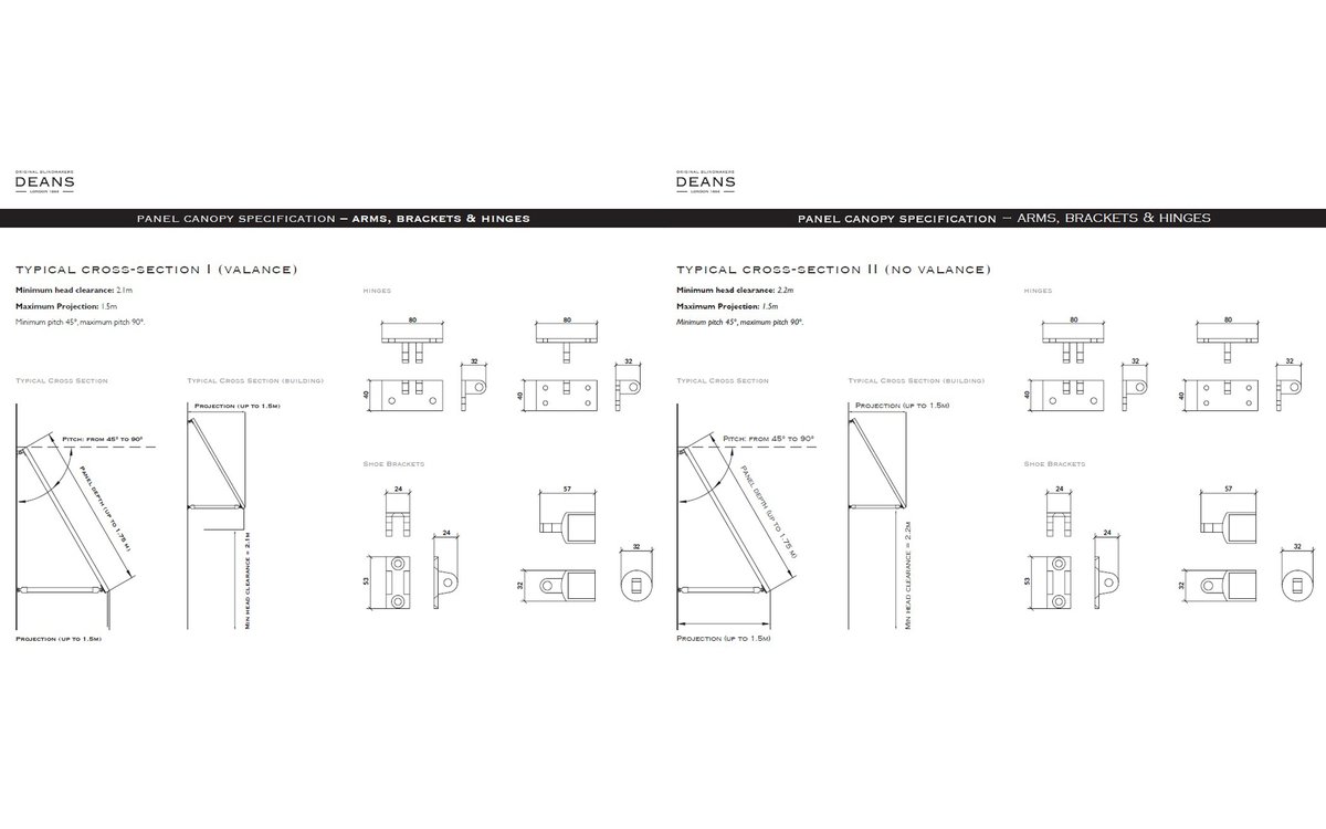
As a leading awning manufacturer, we offer a complete range of drawing services to bring clarity and precision to your awning project. [email protected] 020 8947 8931 deansblinds.co.uk #AwningManufacturer #AwningDesign #ProjectVisualisation #CustomDrawings




What does the future hold for #BIM and #projectvisualisation? hubs.ly/H0d1B_V0 #future #futuretech #technology #construction
What does the future hold for #projectvisualisation and #BIM? As an established provider of #construction site visualisation, we spend a lot of time working on developments to improve our clients' workflows. Here, we round up a selection of those ideas: blog.lobsterpictures.tv/bim-and-the-fu…
@adrianmalone @judypayne Let's put on an #apmksig #mindmapper #projectvisualisation event or webinar in New Year? @Biggerplate @ajwilcox
Bringing your project to life before construction starts saves time, cost, and confusion. Our 3D modelling services help stakeholders visualise plant layouts, equipment placements, and access routes in real-world dimensions. #3DModelling #ProjectVisualisation #ProjexSolutions

As a leading awning manufacturer, we offer a complete range of drawing services to bring clarity and precision to your awning project. [email protected] 020 8947 8931 deansblinds.co.uk #AwningManufacturer #AwningDesign #ProjectVisualisation #CustomDrawings




Proud to be part of this project!! #csite #projectvisualisation
‘Onze programmatorische aanpak loont: na vijftien voorstudies ken je de do’s-and-don’ts wel’ tijd.be/partner/id/101…
Come visite us in the #startup area @BeyondTunnel Discover our C-SITE #projectvisualisation platform #contech #yoursiteinsight #conference2018 #infrastructure @josefienv @EmilieDauwe

What does the future hold for #BIM and #projectvisualisation? hubs.ly/H0d1B_V0 #future #futuretech #technology #construction
What does the future hold for #projectvisualisation and #BIM? As an established provider of #construction site visualisation, we spend a lot of time working on developments to improve our clients' workflows. Here, we round up a selection of those ideas: blog.lobsterpictures.tv/bim-and-the-fu…
@adrianmalone @judypayne Let's put on an #apmksig #mindmapper #projectvisualisation event or webinar in New Year? @Biggerplate @ajwilcox
Bringing your project to life before construction starts saves time, cost, and confusion. Our 3D modelling services help stakeholders visualise plant layouts, equipment placements, and access routes in real-world dimensions. #3DModelling #ProjectVisualisation #ProjexSolutions

Come visite us in the #startup area @BeyondTunnel Discover our C-SITE #projectvisualisation platform #contech #yoursiteinsight #conference2018 #infrastructure @josefienv @EmilieDauwe

As a leading awning manufacturer, we offer a complete range of drawing services to bring clarity and precision to your awning project. [email protected] 020 8947 8931 deansblinds.co.uk #AwningManufacturer #AwningDesign #ProjectVisualisation #CustomDrawings




Something went wrong.
Something went wrong.
United States Trends
- 1. White House 118K posts
- 2. #pilotstwtselfieday N/A
- 3. NASA 60.6K posts
- 4. Warner Bros 6,830 posts
- 5. #Integra 1,093 posts
- 6. #hoothoot N/A
- 7. Fermin 11.9K posts
- 8. #JUNGKOOKXCALVINKLEIN 48.2K posts
- 9. Rick Scott 1,923 posts
- 10. Crosby 3,193 posts
- 11. NBA IS BACK 26.8K posts
- 12. #3YearsOfMidnights N/A
- 13. East Wing 106K posts
- 14. Kurt Suzuki N/A
- 15. Taco Tuesday 14.1K posts
- 16. Knicks 10.1K posts
- 17. CARAMELO ON TLMD 25K posts
- 18. Gucci 30.6K posts
- 19. Olympiacos 21.4K posts
- 20. Christopher Moynihan 5,892 posts